| Prijs | € 275.000,- k.k. |
| Type object | Appartement, benedenwoning |
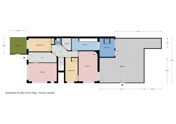
| Perceeloppervlakte | 243 m² |
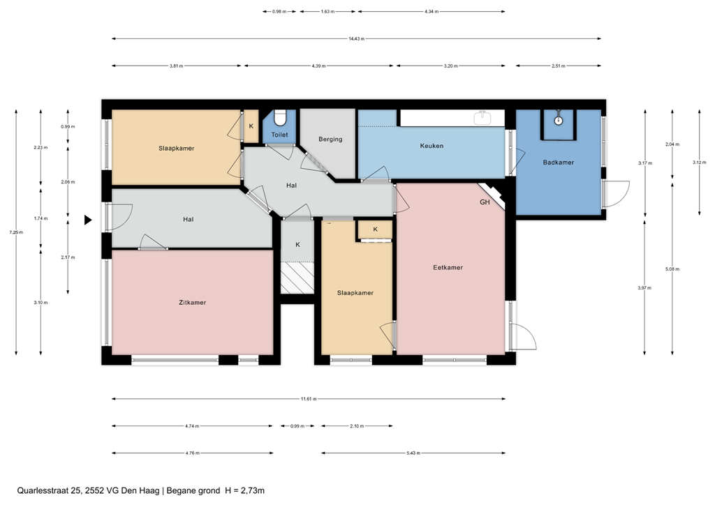
| Woonoppervlakte | 81 m² |
| Aanvaarding | In overleg |
| Status | Verkocht |
Quarlesstraat 25 te Den Haag Deze oorspronkelijke winkel/woning met voor- en achtertuin is op zoek naar een nieuwe eigenaar! Deze ruime parterewoning met eigenzinnige indeling is net vrij gekomen uit de verhuur en heeft wel wat opknapwerkzaamheden nodig maar is absoluut de moeite waard om even te bekijken. Ligging: In een rustige wijk gelegen, op loopafstand van goede winkel en openbaar vervoervoorzieningen. Indeling: Entree, hal, voorzijslaapkamer, ruime voorkamer (vroeger winkel) tussenslaapkamer, woonkamer, keuken en badkamer. Heerlijke achtertuin met zij-ingang. Beknopte voortuin. Bijzonderheden: - VVE twee leden. Onderhoud is overleg - VVE conform MJOP in oprichting - Eenvoudig 3 slaapkamers mogelijk - WOZ waarde 315.000,- - Kunststof kozijnen met dubbel glas - Eigen grond - Huurboiler voor warm water - Ouderdomsclausule - Materialen clausule - Niet bewoond door eigenaar clausule
| Vraagprijs | € 275.000,- k.k. |
| Status | Verkocht |
| Aanvaarding | In overleg |
| Aangeboden sinds | Dinsdag 9 december 2025 |
| Laatste wijziging | Dinsdag 10 maart 2026 |
| Type object | Appartement, benedenwoning |
| Woonlaag | 1e woonlaag |
| Soort bouw | Bestaande bouw |
| Bouwjaar | 1923 |
| Type dak | Platdak |
| Isolatievormen | Dubbel glas |
| Perceeloppervlakte | 243 m² |
| Woonoppervlakte | 81 m² |
| Inhoud | 306 m³ |
| Oppervlakte overige inpandige ruimten | 8 m² |
| Oppervlakte gebouwgebonden buitenruimte | 38 m² |
| Tuinoppervlakte | 38 m² |
| Aantal bouwlagen | 1 |
| Aantal kamers | 4 (waarvan 2 slaapkamers) |
| Ligging | Aan rustige weg In woonwijk |
| Type | Achtertuin |
| Hoofdtuin | Ja |
| Oriëntering | Noord-oost |
| Heeft een achterom | Ja |
| Staat | Verwaarloosd |
| Tuin 2 - Type | Achtertuin |
| Tuin 2 - Staat | Verwaarloosd |
| Tuin 3 - Type | Voortuin |
| Tuin 3 - Staat | Verwaarloosd |
| Energielabel | F |
| Warm water | Elektrische boiler |
| Verwarmingssysteem | Gaskachels |
| Tuin aanwezig | Ja |
| Kadastrale aanduiding | Loosduinen M 2606 |
| Perceeloppervlakte | 243 m² |
| Omvang | Appartementsrecht of complex |
| Eigendomsituatie | Eigen grond |
| Indexnummer | 1 |