Beschrijving
Obrechtstraat 180a
Wij beiden aan een charmant dubbel bovenhuis met veel originele details en groot terras! Aan een rustige straat in het geliefde Duinoord ligt dit ruime dubbele bovenhuis uit 1893. De woning valt direct op door het klassieke gevelbeeld, het lichte karakter en het grote terras op het noordwesten.
Indeling
Entree op straatniveau, trap naar de eerste verdieping.
Op de eerste verdieping bevindt zich de toegang tot het bovenhuis. Via de trap kom je op de overloop op de tweede verdieping.
De lichte woonkamer-eetkamer met schouw heeft openslaande deuren naar het royale terras op het noordwesten, perfect voor de middag- en avondzon. Aangrenzend ligt de originele keuken, met daarnaast een eenvoudige douche-toilet combinatie. Aan de voorzijde van de woning bevindt zich een extra studeer/slaapkamer
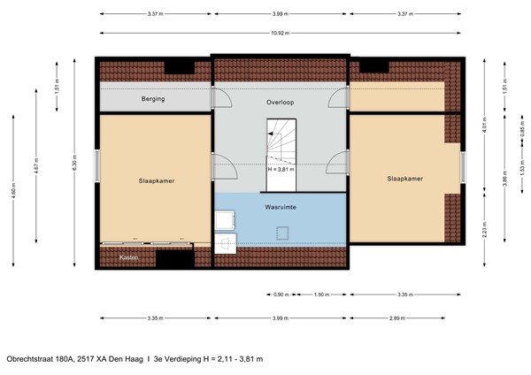
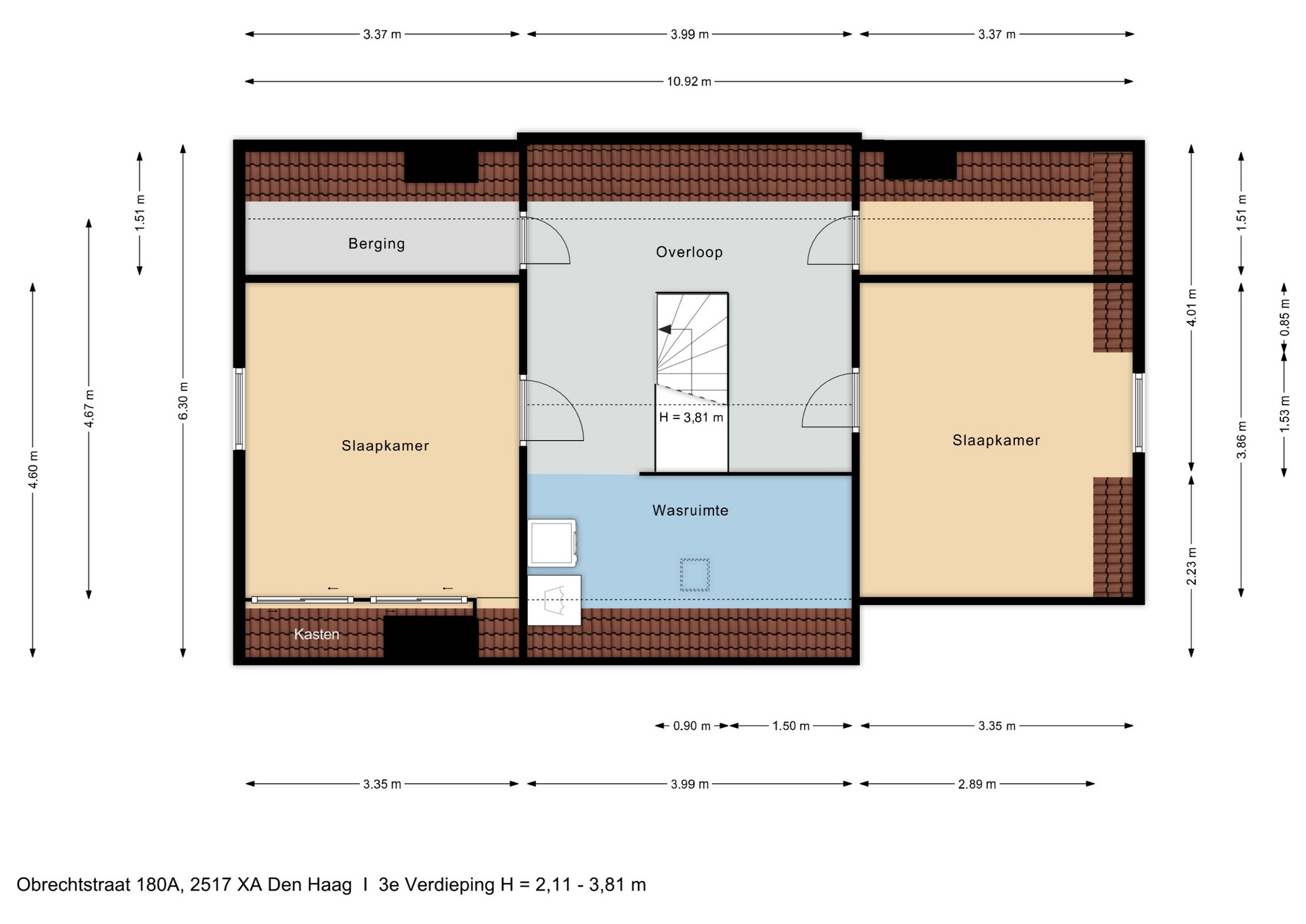
Via een trap is er toegang tot de bovenste verdieping. Hier bevindend zich twee ruime slaapkamers, wasruimte en twee bergruimten.
Bijzonderheden
• Gelegen op eigen grond
• De woning ligt in het Rijks beschermd stadsgezicht Duinoord, een sfeervolle en karakteristieke wijk met veel historische charme
• Er is een actieve VvE, bestaande uit drie leden, ingeschreven bij de Kamer van Koophandel. De maandelijkse bijdrage bedraagt € 262,-. Er is een collectieve opstalverzekering aanwezig
• In verband met het bouwjaar van 1894 worden in de NVM koopovereenkomst de ouderdoms- en materialenclausule opgenomen
• De woning komt uit de verhuur, daarom zal tevens een niet-zelf-bewoondclausule worden opgenomen
• Oplevering is per direct mogelijk