Beschrijving

Frederikstraat 439 (Willemspark)

Wij bieden aan een prachtig appartement in hartje Den Haag, in 2019 gerenoveerd met eventueel een eigen parkeerplaats die mee verkocht kan worden (€ 35.000,- k.k.)

Kenmerken:
+ Heerlijk lichte woonkamer en twee slaapkamers (met uitzicht over de daktuin)
+ Zonnig balkon op het zuidoosten – met vrij uitzicht
+ Ruime berging – Extra opslagruimte en plek voor de fiets in de onderbouw
+ Inclusief mogelijkheid van een eigen parkeerplaats 
+ Toplocatie!!! – Winkels, restaurants, cafés en het OV (o.a. Den Haag Centraal) op loopafstand

Locatie:
Dit appartement ligt in de chique wijk Willemspark, vlakbij de sfeervolle Denneweg, het exclusieve Noordeinde en de levendige Mallemolen. Willemspark is één van de meest gewilde buurten van Den Haag en grenst aan Centrum, Zeeheldenkwartier, Archipelbuurt en Benoordenhout – plekken vol karakter, cultuur, historie en gezelligheid. Volop hippe en klassieke restaurants, cafés en (wijn)bars in de directe omgeving. Het Haagse Bos ligt om de hoek, Den Haag Centraal ligt op loopafstand en binnen 10 minuten fietsen sta je op het strand van Scheveningen. Ook de A4/A12 zijn eenvoudig bereikbaar.

Indeling
Centraal entree met bellentableau, trap en lift naar de 5de verdieping. 
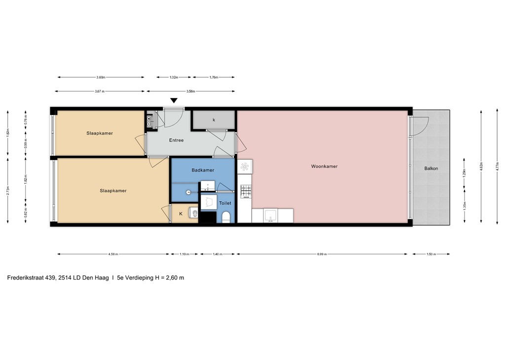
Entree woning; gang; woonkamer met moderne open keuken en deur naar het balkon;  2 slaapkamers aan de achterzijde met uitzicht op de gemeenschappelijke daktuin; moderne, luxe badkamer met toilet, inloopdouche en wastafelmeubel; ruim balkon op het zuid-oosten. 

Voor de exacte maatvoering verwijzen wij naar de plattegrond!

Bijzonderheden:
- Woonoppervlakte: ca. 66 m²
- Bouwjaar: 1976 
- Verwarming middels blokverwarming en warmwater middels boiler 
- Eigen grond 
- VvE bijdrage € 252,30 per maand exclusief voorschot stookkosten € 124,07 per maand 
- VVE bijdrage berging:  € 9.52 per maand 
- Schilderwerk hele complex buitenzijde recent (2025) uitgevoerd
- Parkeerplaats optioneel te koop voor € 35.000,- k.k.
- Oplevering on overleg
- In verband met het bouwjaar van de woning zal ongeacht de kwaliteit een ouderdoms- en materialenclausule in de koopakte worden opgenomen

Kenmerken