Beschrijving

ZATERDAG 4 Oktober OPEN HUIS van 14.00-15.00 

Elandstraat 107-A – Den Haag (Zeeheldenkwartier)

Op zoek naar een instapklare woning in één van de leukste wijken van Den Haag? Dan is dit volledig gerenoveerde voormalige pakhuis precies wat u zoekt! De woning combineert de charme van een uniek pand met het comfort van nu: uitstekende geluidsisolatie, een moderne open keuken met hoogwaardige inbouwapparatuur, drie ruime slaapkamers, een luxe badkamer én een zonnig balkon.

Indeling
Begane grond: entree, hal en een lichte woonkamer met aan de achterzijde de moderne open keuken voorzien van inbouwapparatuur. Vanuit de woonkamer bereikt u een royale extra kamer – perfect in te richten als homeoffice, TV-kamer of derde slaapkamer.

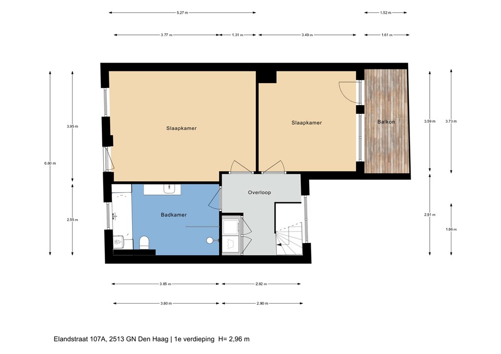
Eerste verdieping: twee royale slaapkamers en een luxe badkamer voorzien van vloerverwarming, extra toilet, wastafelmeubel, inloopdouche, ligbad én een verwarmde badkamerspiegel met geïntegreerde sfeerverlichting. Op de overloop bevinden zich de aansluitingen voor wasmachine en droger, keurig weggewerkt in een kast. Aan de achterzijde ligt het recent vernieuwde balkon, waar u heerlijk van de zon kunt genieten.

Pluspunten
Een bijzonder voordeel van deze woning is de mogelijkheid om nog een extra verdieping of een groot dakterras te realiseren. Zo kunt u de woning in de toekomst eenvoudig uitbreiden.

Kenmerken:

Volledig gerenoveerd in 2024/2025

Uitstekende geluidsisolatie

Eeuwigdurende, afgekochte erfpacht

3 (mogelijkheid tot 4) slaapkamers

Luxe badkamer met vloerverwarming, ligbad én verwarmde spiegel met sfeerverlichting

Mogelijkheid tot extra woonlaag of dakterras

Turn key: direct te betrekken

Verkoopclausules van toepassing

Kenmerken