Beschrijving

Convivastraat 82

Wij mogen u aanbieden een prachtig gerenoveerd dubbel bovenhuis gelegen in een rustige straat. 

Deze woning is net volledig onder handen genomen en op alle vlakken gerenoveerd! 

* nieuwe kunststof kozijnen rondom voorzien van HR++ beglazing 
* nieuwe CV ketel en radiatoren (intergas 2025) 
* nieuwe keuken met Bauknecht apparatuur (vaatwasser, combi oven, grote koel vries, inductie kookplaat)
* nieuwe badkamer met inloopdouche, toilet, wastafelmeubel en designspiegel (incl verwarming) 
* nieuwe vloeren en plinten 
* volledig geïsoleerd en dus nu met Energielabel A 
* nieuwe electra en leidingwerk 

Indeling: 
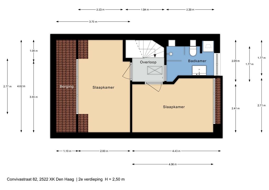
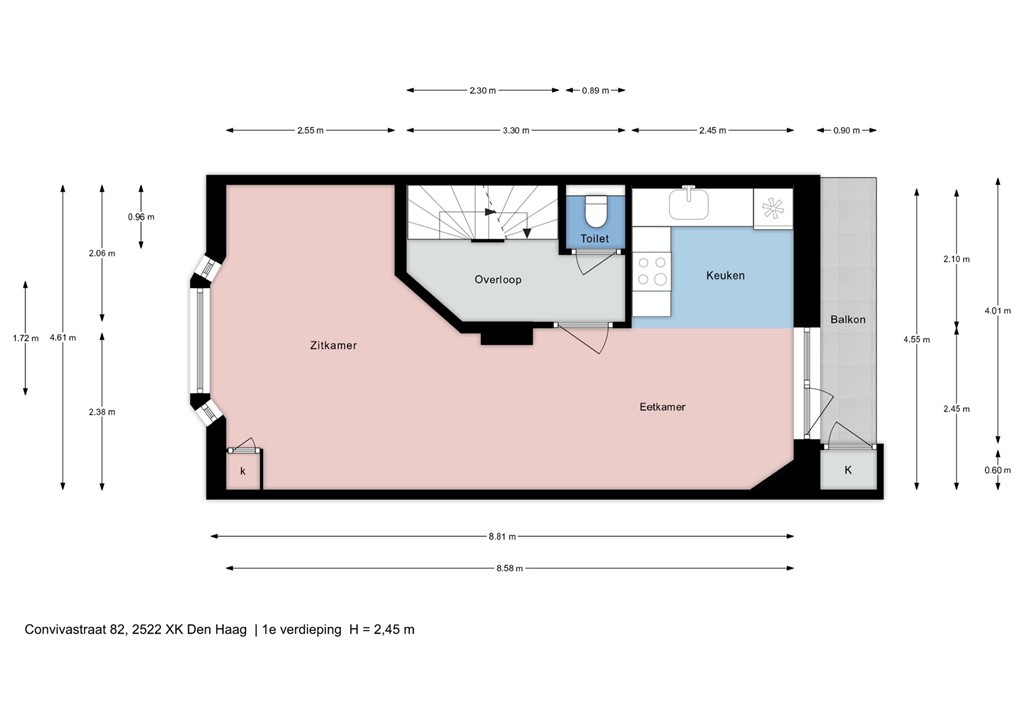
Entree op straatniveau. Hal, entree met meterkast, trap naar de eerste etage. Hier bevindt zicht de leuke woonkamer-eetkamer met aan de achterzijde de luxe open keuken en een balkon over de gehele breedte. De woonkamer is voorzien van een nieuw plafond met inbouwspots met dimmer.  Luxe apart toilet op de overloop. Trap naar de tweede etage, hier bevinden zich 2 goede slaapkamers en de luxe nieuwe badkamer. Verder is hier nog toegang tot een ruime geïsoleerde vliering in de hal.

Wat u verder wilt weten;
* eigen grond
* luxe afwerking 
* actieve VvE met bijdrage van € 167,- per maand 
* voorgevel schilderwerk en goten is reeds opdracht gegeven voor herstel vanuit de VVE 
* niet bewoond door eigenaar clausule
* overdrachtsbelasting clausule van toepassing 
* projectnotaris Dirk Jan Blok uit Gouda

Kenmerken